Продажа, Жилой дом, лот 350519
Лот: 350519
Брест, Старожитная улица
57.4 м²
жилая
10.7 м²
кухня
122126
Площадь участка
Стоимость:
418 432 руб
143 000 $
Стоимость за м²:
3 011 руб
1 029 $
Свяжитесь со мной
Продажа, Жилой дом, лот 350519

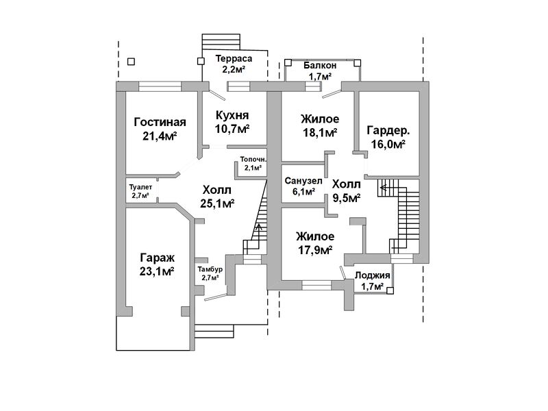
Современный двухэтажный жилой дом, г. Брест, ул. Старожитная. д. 15/7, без внутренней отделки, 2014  г. п. в предместье Стимово. Фундамент- ленточно-монолитный армированный, стены - блок+ кирпич, крыша-металлочерепица. Общая площадь здания по СНБ-167.7 м. кв., общая площадь жилого помещения 139,0 м. кв., кухня- 10,7, жилая площадь- 57,4 м. кв., в доме 2-а санузла. Центральные коммуникации-электричество, вода, канализация, отопление-газовый котел. район с хорошо развитым транспортным сообщением, в современном районе города.
Договор № 519/1 от 30.09.2025, ЗАО «Альфа-Актив», УНП 290426827, лицензия № 02240/92 от 29.12.2005 на право осуществления деятельности по оказанию юридических услуг (риэлтерские услуги)

  • Характеристики:
    • Год постройки: 2014
    • Материал стен: газосиликатный блок
    • Материал крыши: металлочерепица
    • Этажность: 2
    • Кол-во комнат: 3
    • Санузел: 2 и более с/у
    • Площадь участка: 122126
  • Местоположение:
    • Населенный пункт: Брест
    • Микрорайон: предместье Стимово
    • Улица: Старожитная улица
  • Площадь:
    • жилая: 57.4 м²
    • кухня: 10.7 м²
  • Дополнительно:
    • Электричество: центральное
    • Отопление: газовое/дизельный генератор/камин (греет воду)
    • Водоснабжение: центральное
    • Канализация: центральная