Каталог недвижимости
Лот: 350412
агрогородок Луково, улица Суворова
26.1 м²
жилая
6.1 м²
кухня
0.25
Площадь участка
Стоимость:
30 521 руб
10 500 $
Стоимость за м²:
695 руб
239 $
Свяжитесь со мной
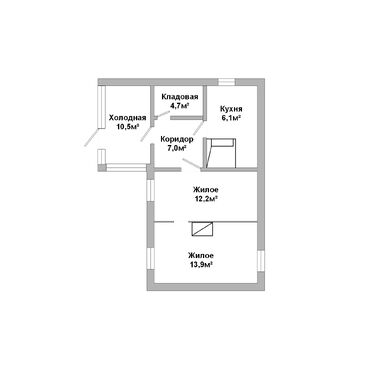
Жилой дом

Жилой дом, Малоритское направление, аг.Луково. Общая площадь по СНБ 54,4м.кв., общая площадь 43,9м.кв., жилая 26,1м.кв., 1 комната . Материал стен-брус, кровля -шифер. коммуникации: электричество, водоснабжение-колодец, центральный водопровод по улице, отопление-печное, газоснабжение централизованно по улице. Участок 0,25 га, огорожен. Хоз. постройки: 2 сарая, летняя кухня. Хорошее транспортное сообщение, в шаговой доступности лес и озеро. 

Договор № 411/1 от 21.07.2025, ЗАО «Альфа-Актив», УНП 290426827, лицензия № 02240/92 от 29.12.2005 на право осуществления деятельности по оказанию юридических услуг (риэлтерские услуги)

  • Характеристики:
    • Год постройки: 118712
    • Материал стен: Брус строительный
    • Материал крыши: шифер
    • Этажность: 1
    • Кол-во комнат: 2
    • Санузел: НЕТ
    • Площадь участка: 0.25
    • Хоз. постройки: 2 сарая/летняя кухня
  • Местоположение:
    • Населенный пункт: агрогородок Луково
    • Улица: улица Суворова
  • Площадь:
    • жилая: 26.1 м²
    • кухня: 6.1 м²
  • Дополнительно:
    • Электричество: есть
    • Отопление: печное (газ рядом)
    • Водоснабжение: колодец/центральное по улице