Каталог недвижимости
Жилой дом, Новые Козловичи- 350371
Лот: 350371
Брест, Лавровая улица
132.1 м²
жилая
9.1 м²
кухня
0.1105
Площадь участка
Стоимость:
569 320 руб
200 000 $
Стоимость за м²:
2 926 руб
1 028 $
Свяжитесь со мной
Жилой дом, Новые Козловичи- 350371

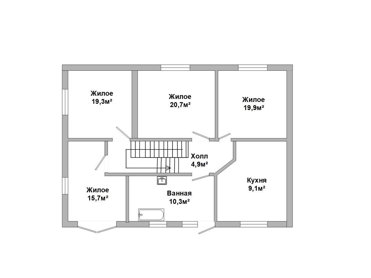
Благоустроенный жилой дом, г. Брест, Новые Козловичи.  Современный двухэтажный дом 2014 г.п., фундамент- ленточно-монолитный армированный, стены- блок, крыша- металлочерепица. Общая площадь здания по СНБ 228,8 м.кв., общая площадь жилого помещения 194,5 м.кв., жилая площадь 132,1 м.кв., кухня- 9,1 кв.м., в доме с/у 2-а санузла.  Центральные коммуникации - электричество, вода, канализация, отопление- газовый котел. В отделке дома использовались современные отделочные материалы, на полу плитка (смонтирован теплый пол) и ламинат, потолки ошпаклеваны и окрашены снежкой, в гостинной натяжной потолок,  межкомнатные двери- массив. Стены окрашены, в комнатах оклеены обоями.

Участок огорожен по периметру, установлены откатные ворота и калитка, гараж также оснащен автоматическими воротами.

Район  с хорошо развитым транспортным сообщением, в шаговой доступности магазин и остановки общественного транспорта.

Договор № 371/1 от 30.06.2025, ЗАО «Альфа-Актив», УНП 290426827, лицензия № 02240/92 от 29.12.2005 на право осуществления деятельности по оказанию юридических услуг (риэлтерские услуги)

  • Характеристики:
    • Год постройки: 2014
    • Материал стен: газосиликатный блок
    • Материал крыши: металлочерепица
    • Этажность: 2
    • Кол-во комнат: 7
    • Санузел: 2 и более с/у
    • Площадь участка: 0.1105
  • Местоположение:
    • Населенный пункт: Брест
    • Микрорайон: микрорайон Новые Козловичи
    • Улица: Лавровая улица
  • Площадь:
    • жилая: 132.1 м²
    • кухня: 9.1 м²
  • Дополнительно:
    • Электричество: есть
    • Отопление: газовое
    • Водоснабжение: центральное
    • Канализация: центральная