Каталог недвижимости
Лот: 350309
деревня Свитичи
33.7 м²
жилая
9.8 м²
кухня
0.2
Площадь участка
Стоимость:
76 853 руб
26 500 $
Стоимость за м²:
1 363 руб
470 $
Свяжитесь со мной
Жилой дом

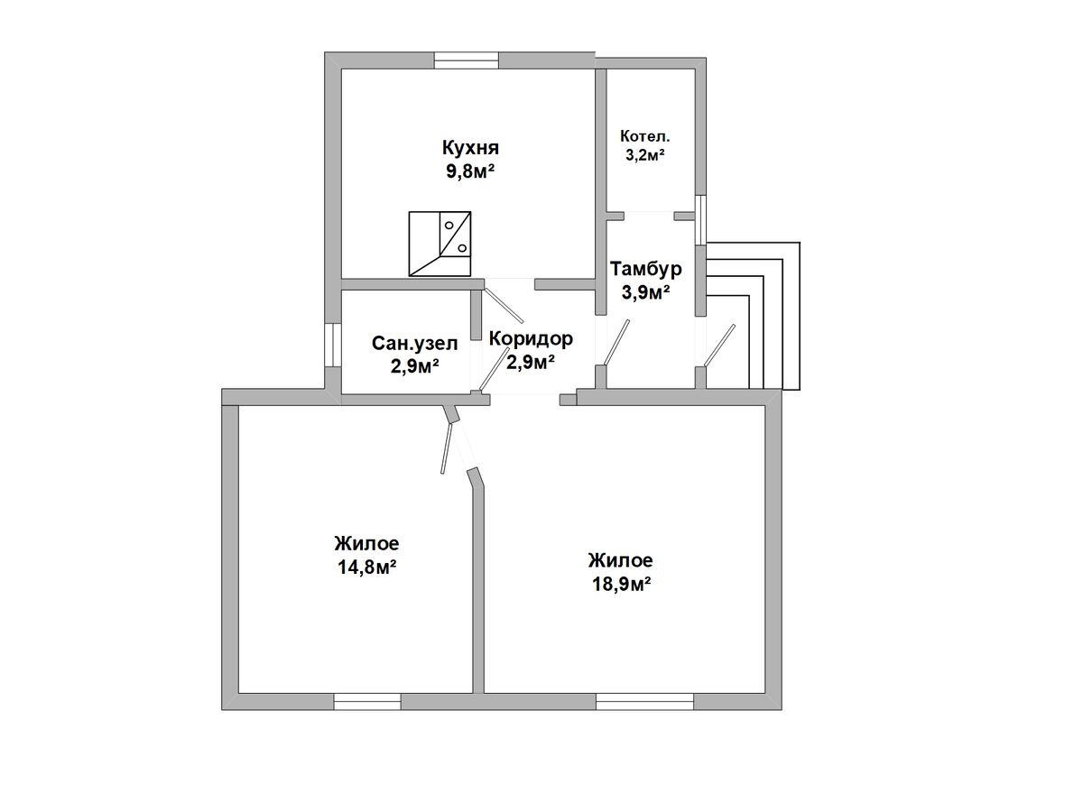
Жилой дом 2023 г.п., Каменецкий район, д.Свитичи. Материал стен -блок облицован кирпичем, кровля -шифер. Общая площадь по СНБ 77,0м.кв.,общая площадь 55,4м.кв., жилая 33,7м.кв., 2 комнаты, сан узел совмещенный , горячая вода -бойлер. Коммуникации: электричество, водоснабжение скважина, отопление-котел на твердом топливе, печь, канализация местная. Участок 0,2 га, огорожен, ухожен. Асфальтовый подъезд, рядом лес, озеро. Лот 350309.

Договор № 309/1 от 29.05.2025, ЗАО «Альфа-Актив», УНП 290426827, лицензия № 02240/92 от 29.12.2005 на право осуществления деятельности по оказанию юридических услуг (риэлтерские услуги)

  • Характеристики:
    • Материал стен: Газобетонный блок
    • Материал крыши: шифер
    • Этажность: 1
    • Санузел: совмещенный
    • Площадь участка: 0.2
    • Хоз. постройки: сарай
  • Местоположение:
    • Населенный пункт: деревня Свитичи
  • Площадь:
    • жилая: 33.7 м²
    • кухня: 9.8 м²
  • Дополнительно:
    • Электричество: есть
    • Отопление: твердотопливное
    • Водоснабжение: скважина
    • Канализация: местная