Каталог недвижимости
Трехкомнатная квартира, ул. МОПРа - 250559
Лот: 250559
Брест, улица МОПРа
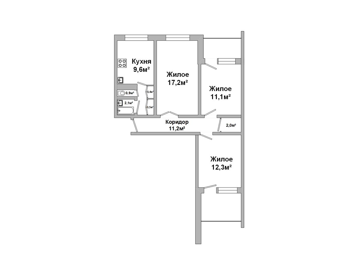
71.7 м²
общая
40.6 м²
жилая
9.6 м²
кухня
Стоимость:
214 080 руб
75 000 $
Стоимость за м²:
2 986 руб
1 046 $
Свяжитесь со мной
Трехкомнатная квартира, ул. МОПРа

Трехкомнатная квартира на четвертом этаже 5-этажного панельного дома 1978 года постройки в центральной части города. Установлены стеклопакеты, окна выходят на разные стороны. Входная дверь – металлическая, межкомнатные - шпонированные. Общая площадь 71,7 кв.м, жилая 67,1 кв.м. Две спальни с лоджиями (застеклены стеклопакетами) расположены в конце коридора напротив друг друга, зал 17,2 кв.м. кухня 9,6 кв.м, санузел раздельный и коридор.

Квартира с ремонтом: окрашенные потолки 2,5 м, полы - паркет + плитка, стены оклеены обоями. В санузле, облицованном современной керамической плиткой, заменены сантехнические трубы. Установлен новый электросчетчик. Встроенная кухня, мебель. Домофон. Центральную часть города отличает функциональное разнообразие и мобильность, удобная транспортная инфраструктура. Учитываются любые варианты, а также обмен. 

Договор № 559/1 от 10.11.2025, ЗАО «Альфа-Актив», УНП 290426827, лицензия № 02240/92 от 29.12.2005 на право осуществления деятельности по оказанию юридических услуг (риэлтерские услуги)

  • Характеристики:
    • Год постройки: 1978
    • Материал стен: панель
    • Этаж квартиры: 4
    • Этажность: 5
    • Кол-во комнат: 3
    • Санузел: раздельный
    • Балкон: 2 лоджии
  • Местоположение:
    • Населенный пункт: Брест
    • Микрорайон: ЦЕНТР
    • Улица: улица МОПРа
  • Площадь:
    • общая: 71.7 м²
    • жилая: 40.6 м²
    • кухня: 9.6 м²
  • Дополнительно: