Трехкомнатная квартира, Стафеева. - 250439
Лот: 250439
Брест, улица Стафеева
69.7 м²
общая
41.2 м²
жилая
9.2 м²
кухня
Стоимость:
215 676 руб
76 500 $
Стоимость за м²:
3 096 руб
1 098 $
Свяжитесь со мной
Трехкомнатная квартира, Стафеева.

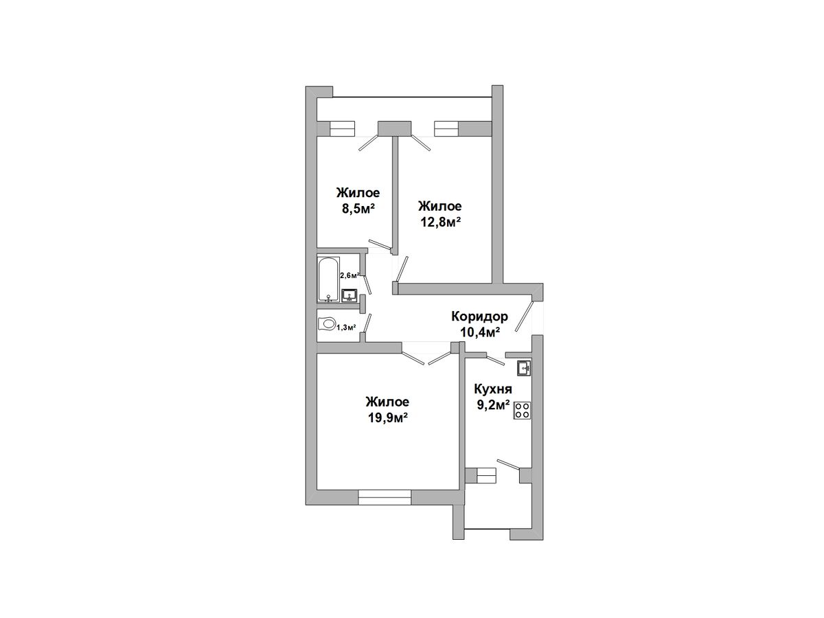
Трехкомнатная квартира на втором этаже 5-этажного кирпичного дома 1998 года постройки в восточной части города.  Общая площадь 69,7 кв.м, жилая 41,2 кв.м. Функциональная и удобная планировка: три просторные жилые комнаты расположены напротив друг друга, кухня 9,2 кв.м, санузел раздельный и коридор. Две застекленные лоджии из комнаты и кухни. 

Квартира в жилом состоянии: межкомнатные двери - МДФ,  потолки - снежка , полы - доска покрыта лаком, стены оклеены обоями, лоджии застеклены стеклопакетами. В рабочей зоне кухни размещен кухонный гарнитур. В благоустроенном микрорайоне помимо культурных учреждений и жилых комплексов есть лесопарки и скверы.

Договор № 439/1 от 05.08.2025, ЗАО «Альфа-Актив», УНП 290426827, лицензия № 02240/92 от 29.12.2005 на право осуществления деятельности по оказанию юридических услуг (риэлтерские услуги)

  • Характеристики:
    • Год постройки: 1998
    • Материал стен: КИРПИЧ
    • Этаж квартиры: 2
    • Этажность: 5
    • Кол-во комнат: 3
    • Санузел: раздельный
    • Балкон: 2 лоджии
  • Местоположение:
    • Населенный пункт: Брест
    • Микрорайон: микрорайон Восток
    • Улица: улица Стафеева
  • Площадь:
    • общая: 69.7 м²
    • жилая: 41.2 м²
    • кухня: 9.2 м²
  • Дополнительно: